Главная > Полезная информация > Оформление перепланировки апартаментов
Апартаменты - нежилые помещения, в которых можно проживать, как в квартире, оборудовав санузлы, кухню, спальни и иные необходимые для жизни помещения, но нельзя сделать постоянную регистрацию по месту жительства, то есть прописаться в своем жилище. В апартаментах, как и в жилых квартирах, можно делать перепланировку, переносить стены, возводить перегородки, устраивать санузлы, делить или объединять помещения между собой. Регистрировать все изменения в Росреестре. На практике, согласование перепланировки в апартаментах бывает двух видов.
Первый: Дома имеющие статус нежилого здания, в которых расположены только апартаменты. Для согласования перепланировки в таком случае, достаточно подготовить техническое заключение и проект перепланировки в проектной организации с СРО, разработанные в соответствии со всеми требованиями. На основании разработанной проектной документации внести изменения в БТИ и Росреестре. В данном случае не требуется обращения в мосжиинспекцию для получения разрешения на перепланировку и оформлением акта. Если здание полностью НЕЖИЛОЕ и не имеет жилых помещений. Статус и назначение здания можно узнать в БТИ или росреестре.
Второй: Здание, имеющее статус жилого дома, в котором расположены, как квартиры, так и апартаменты (нежилые помещения). В этом случае необходимо согласование и получение разрешения в мосжилинспекции. Для оформления перепланировки необходимо разработать техническое заключение и проект перепланировки, получить экспертное заключение ФБУЗ Центр гигиены и эпидемиологии по Москве или любой акредитованной Роспотребнадзором организации, имеющей соответствующую лицензию. После проведения работ по переустройству помещения, необходимо подготовить акты на освидетельствование скрытых работ по гидро и звукоизоляции полов и оформить акт о завершенном переустройстве и перепланировке в мосжилинспекции. Требования к согласованию перепланировке в нежилых помещениях не такие жесткие, как в жилых квартирах, поэтому при разработке дизайна перепланировки больше возможностей по планированию пространства своего жилища.
Проект перепланировки апартаментов в нежилом здании
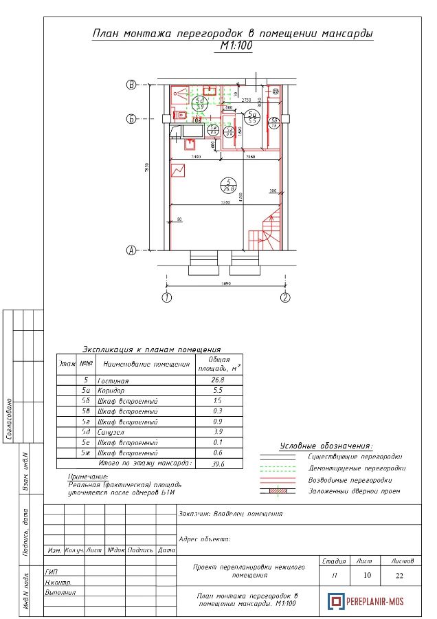
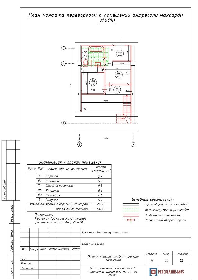
Преустройство мансарды, устройство антресоли, устройство дополнительных санузлов, перенос лестницы.
Проект перепланировки апартаментов в нежилом здании
Перепланировка апартаментов с устройством дополнительных санузлов и кухонь
