Главная > Проект перепланировки
Получить разрешение на перепланировку или согласовать ранее выполненую перепланировку квартиры или нежилого помещения в Москве (в том числе апартаменты), невозможно без разработки проекта перепланировки. Узаконить перепланировку квартиры возможно, имея на руках качественный проект перепланировки подготовленный с учетом всех требований. Проектная документация должна быть разработана организацией состоящей в СРО проектировщиков и утверждена квалифицированной цифровой подписью. Для получения разрешения на перепланировку в мосжилинспекции потребуется техническое заключение и проект перепланировки, для оформления акта о завершенном переустройстве на ранее выполненные работы - техническое заключение о допустимости и безопасности.
Проект перепланировки должен быть выполнен в соответствии с приложением 3 постановления 508 ПП от 25.10.2011 г. Подача документов на рассмотрение в жилищную инспекцию осуществляется только в электронном виде через портал госуслуг mos.ru. Для этого проект перепланировки и техническое заключение оформляются в электронном виде и заверяются усиленной электронной цифровой подписью, далее электронный файл прикрепляется к заявлению в личном кабинете. Для того чтобы подать документы через портал mos.ru у вас должна быть полная учетная запись, подтвержденная через МФЦ.
Техническое заключение о состоянии несущих конструкций и проект перепланировки разрабатываются в том случае, если вы только планируете работы по перепланировке и вам требуются документы, чтобы получить разрешение на перепланировку (Распоряжение Мосжилинспекции).
В состав технического заключения включается вся информация о параметрах здания в котором расположен объект перепланировки. Год постройки, этажность здания, серия дома. Описываются несущие и ограждающие конструкции и их состояние, материалы из которых они выполнены. Указываются планы квартиры до перепланировки с экспликацией помещений. В выводах указывается возможно или невозможно проведение работ по перепланировки данного помещения или квартиры. В случае затрагивания несущих конструкций, производятся расчеты нагрузок на перекрытия и стены, с выборочным вскрытием и инструментальными измерениями.
В проекте перепланировки проводятся необходимые расчеты, с описанием узлов и деталей конструкций. Описывается порядок и перечень производимых работ по перепланировке. Описываются инженерные системы: водоснабжение, канализация, вентиляция. Отбражаются размерные чертежи с планируемой планировкой помещений, с указанием их назначений и т. д. Детально отображаются сложные узлы, такие как гидроизоляция, схема усиления проема и т д
Техническое заключение о допустимости и безопасности выполненных работ по перепланировке и переустройству требуется в случаях, когда перепланировка уже выполнена и вам нужно получить акт о завершенном переустройстве и перепланировке на ранее выполненные работы без решения о согласовании переустройства и перепланировки помещения в жилом доме. Для оформления заключения на объект выезжает специалист, производит обследование квартиры или нежилого помещения. По результатам осмотра и произведенных расчетов, разрабатывается техническое заключение о возможности согласования ранее выполненной перепланировки, ее допустимости и безопасности.
Мы подготовим для Вас всю необходимую проектную и техническую документацию, на любом этапе поможем оформить или согласовать под ключ перепланировку в квартире или нежилом помещении.
В зависимости от предполагаемых работ по перепланировке в проект входят следующие разделы:
- планировочные, архитектурные, конструктивные, технологические решения;
- решения по устройству инженерного оборудования и заключение о функционировании внутренних инженерных сетей;
- решения по охране окружающей среды, противопожарным мероприятиям;
- решения по организации производства работ, обеспечения доступности маломобильным группам населения;
- работы по перепланировке должны соответствовать санитарным нормам.
Наша компания занимается подготовкой проектной документации для согласования перепланировки и внесения изменений в техническом паспорте помещения, также мы выполняем проекты по изменению фасада здания (реконструктивные работы). Производим обследование зданий и сооружений с выпуском технического заключения о состоянии несущих и ограждающих конструкций и допустимости и безопасности произведенных работ по перепланировке. Проектная документация оформляется в соответствии с требованиями ГОСТ Р 21.1101-2009 «Система проектной документации для строительства. Основные требования к проектной и рабочей документации»; ГОСТ Р 21.1002-2008 «Система проектной документации для строительства. Нормоконтроль проектной и рабочей документации»; ГОСТ Р 21.1001-2009 «Система проектной документации для строительства. Общие положения»; ГОСТ 21.608-84 «Система проектной документации для строительства. Внутреннее электрическое освещение. Рабочие чертежи».
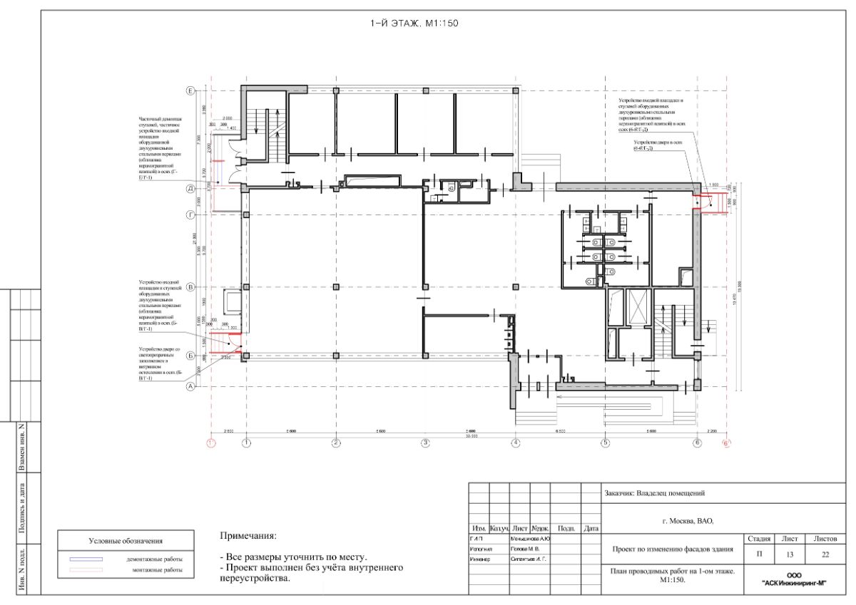
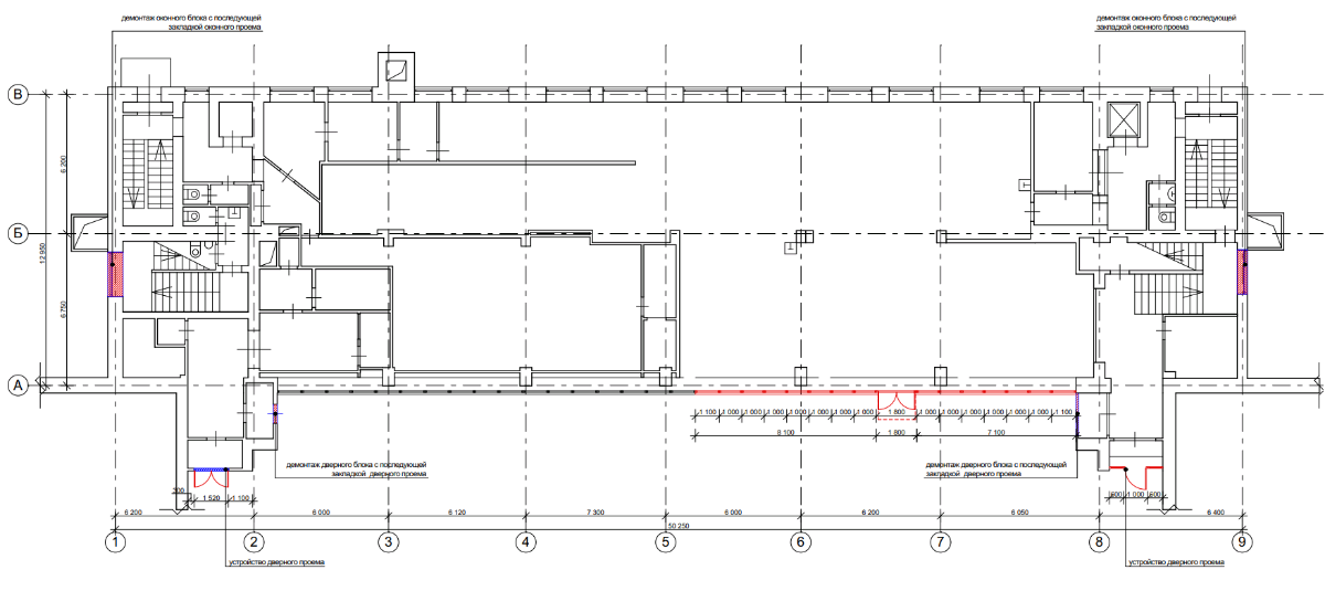
Проект по изменению фасада здания (реконструктивные работы)
Согласование перепланировки нежилого здания с частичным изменением по фасаду
Проект реконструктивных работ по изменению фасада здания
Устройство входа через приямок
Проект перепланировки фасада встроенно-пристроенной части жилого дома
Проект реконструктивных работ по фасаду здания с частичной перепланировкой внутренних помещений
Проект переустройства входной группы с устройством пандуса для маломобильных групп.
Обследование зданий и сооружений с выпуском технического заключения.
Обследования включает в себя визуальное (осмотр помещения и оценка состояния конструкций по внешним признакам) и детальное обследование, производимое с применением инструментального анализа и контроля с использованием специального оборудования.
Детальное обследование необходимо для определения возможности проведения реконструкции здания или проведения перепланировки помещений (устройство антресолей, дополнительных этажей и т. д.), для определения причин образования трещин в несущих элементах зданий и сооружений и возможности их дальнейшей эксплуатации и сохранению несущей способности конструкций.
Порядок проведения работ по обследованию конструкций включает в себя визуальный осмотр, выявление повреждений и дефектов и деформаций с указанием их на планах помещений. Проведение обмеров несущих и ограждающих конструкций, обследование инженерных сетей и систем. Используя инструментальный контроль производится определение прочности бетона, измеряется толщина защитного слоя бетона, определяется диаметр арматуры, длина свай. Производится оценка трещин в стальных конструкциях и сварных швах.
Стоимость производимых работ зависит от объема и целей проведения технического обследования помещений, а также от конструктивных особенностей здания или сооружения.
Наша компания предоставляет услуги по согласованию перепланировки под ключ, мы производим всю работу, начиная с бесплатной консультации, заканчивая доставкой готовых документов к вам на дом.
Дополнительные услуги:
Согласование перепланировки нежилого помещения
Кадастровый учёт и внесение изменений в ЕГРН
тел. 8 495 142-32-77
