Главная > Полезная информация > Перепланировка квартиры серия дома II - 57
Панельный дом серии II-57 с 1, 2, 3 комнатными квартирами, 12-ти этажный жилой дом, высота потолков 2,64 м, имеются грузопассажирские лифты. Конструкция дома состоит из наружных трехслойных панелей 320 мм. Внутренние стены несущие панели толщиной 160 мм, перекрытия - бетонные панели 140 мм. Перегородки гипсобетонные 80 мм.
Инженерные коммуникации расположены в тех подвале. Центральное отопление, холодное и горячее водоснабжение, естественная вентиляция через вентблоки расположенные на кухне. мусоропровод на лестничных клетках. Фасад дома имеет характерное отличие, спаренные балконы под тупым углом.
Секция серии II-57 с расположением квартир на этаже
Типовой проект перепланировки двухкомнатной квартиры в доме серии II-57
до перепланировки после перепланировки
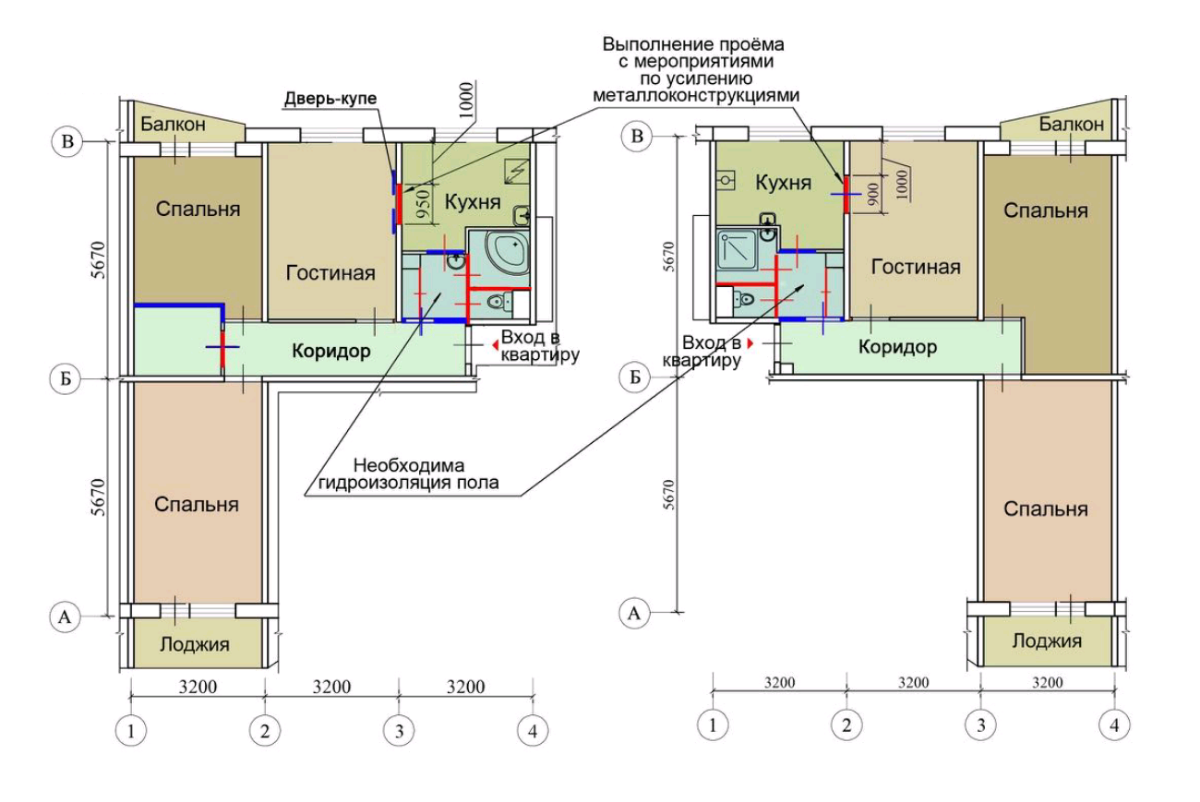
Типовой проект перепланировки 3-х комнатной квартиры в доме серии II-57
до перепланировки
после перепланировки
Проем в несущей стене обязательно усиливается металлоконструкциями, в помещении санузла выполняется усиленная гидроизоляция пола. Работы по прорезке и усилению проема должны выполняться специализированной организацией имеющей допуск СРО на данный вид работ
Наши проекты
Перепланировка двухкомнатной квартиры. Устройство проема в несущей стене между газифицированной кухней и комнатой. Объединение санузла с увеличением площади за счет коридора. Устройство душевой кабины в санузле.
