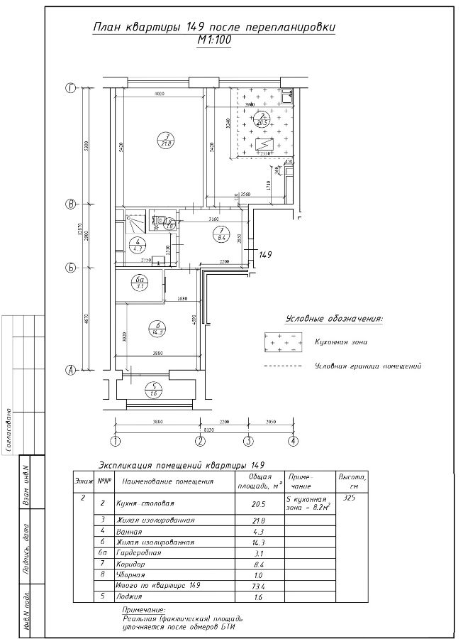
Увеличение пространства кухни за счет соседних (подсобных) помещений. Узаконить такую перепланировку возможно, если сделать в квартире кухню-столовую с выделением кухонной зоны. Этот вариант переустройства квартиры позволяет увеличить площади кухни за счет жилой комнаты не нарушая никаких норм, в частности требование СП 5413330.2016 п. 9.22а "Не допускается размещение кухни (кухни-ниши и кухонной зоны кухни-столовой) над жилыми комнатами." В результате такой перепланировки помещение разделяется на две зоны - кухонная зона и зона столовой. При разработке проекта перепланировки требуется выделить кухонную зону условной границей (с условными обозначениями) и указанием линейных размеров на плане после перепланировки, показывая на чертеже, что данная площадь не выходит на жилую комнату или под санузел сверху. Единственный минус при согласовании такой перепланировки, в квартире теряется одна жилая комната. Перепланировка кухни в кухню-столовую возможна только в квартирах с электрической плитой. Для реализации такого проектного решения в квартире с газовым оборудованием, потребуется произвести отключение от газоснабжения и установить электроплиту. Если на квартиру выделено недостаточно мощности, необходимо запросить недостающие киловатты в управляющей компании, которая обслуживает ваш дом.
Устройство кухни-столовой позволяет увеличить общую площадь всей кухни за счет жилых комнат или санузла. Столовая является нежилым помещением, которое возможно разместить даже под санузлом, не ухудшая при этом жилищных условий. Также такая планировка позволяет сделать единое пространство кухни без устройства каких либо строительных конструкций на границе помещений, что требуется при устройстве обычной кухни или кухни-ниши.
Обязательное условие при согласовании такой перепланировки - устройство кухонной зоны в первоначальных границах помещения кухни по БТИ. Мойка и плита должны оставаться в кухне или в зоне коридора, кладовой, в случаях, если кухня устраивается на площади этих помещений. Выносить кухонное оборудование в жилую зону или в зону санузла, где будет размещаться столовая - не допускается.
Перепланировка должна выполняться в соответствии со всеми требованиями норм и правил установленных федеральным законодательством и постановлениями местных органов власти:
- Площадь устраиваемой кухни-столовой должна быть не менее 6 кв. м.
- Мойка и плита размещается только в кухонной зоне
- Обязательная гидроизоляция пола на всей площади кухни-столовой
- Кухня должна быть оборудована электроплитой
При проведении работ по перепланировке кухни, проектом предусматривается обязательное устройство гидроизоляции пола по всей площади кухни-столовой с предоставлением актов освидетельствования скрытых работ организации с СРО, выполнявшей работы по перенпланировке.
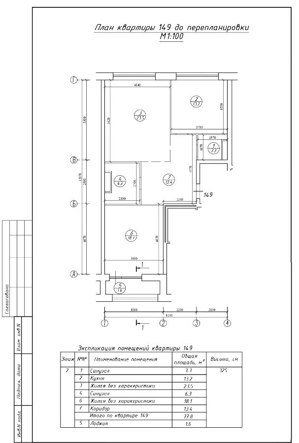
Пример проекта перепланировки квартиры с устройством кухни-столовой с выделением кухонной зоны
Проектом предусматривалось увеличение кухни за счет демонтируемого санузла, такая перепланировка возможна только с устройством кухни-столовой. Кухонная зона не должна попадать под санузел квартиры сверху.
